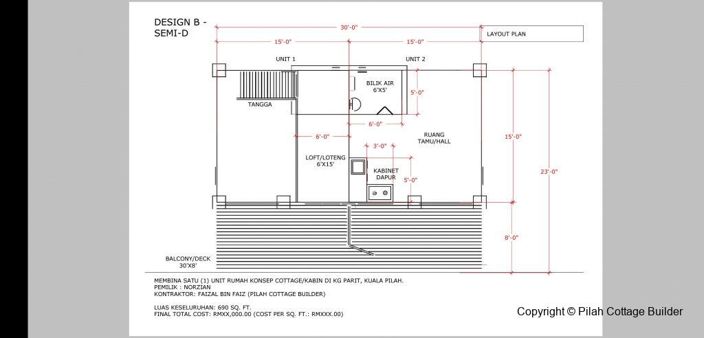
Owner: Norzian
Lokasi: Kg. Parit, Kuala Pilah, N. Sembilan
Tahun dibuat: October 2021
Keluasan binaan: 690sf
Pembinaan untuk rumah ke-2 dan ke-3 selepas berpuas hati dengan rumah pertama yang kami bina setahun yang lalu. Rumah jenis studio semi-D dilengkapi dengan loft/loteng. Mempunyai deck/balcony yang luas sesuai untuk makan/mengopi/beristirehat sambil menikmati suasana kampung.
Pembinaan Cafe beserta counter memasak, mini bar dan 2 set meja makan/kerusi menggunakan kayu tempatan dan besi. Berkeluasan 20′ x 35′, cafe ini disediakan sebagai kemudahan untuk tetamu berkumpul beramai-ramai sambil bbq dan makan-makan.
Harga siap:
Rumah – RM83,000.00/unit (RM120/sf) – pada waktu pembinaan
Cafe – RM23,500
Harga tidak termasuk perabot dan kabinet
Rumah siap electrical (wiring, suis, soket dan lampu LED) dan plumbing (Tidak termasuk kos permohonan, deposit dan pemasangan oleh TNB dan syarikat bekalan air)


















