Owner: Azamly
Lokasi: Kg. Anak Air Kuning, Kepis, Kuala Pilah, N. Sembilan
Tahun dibuat: Jan 2022
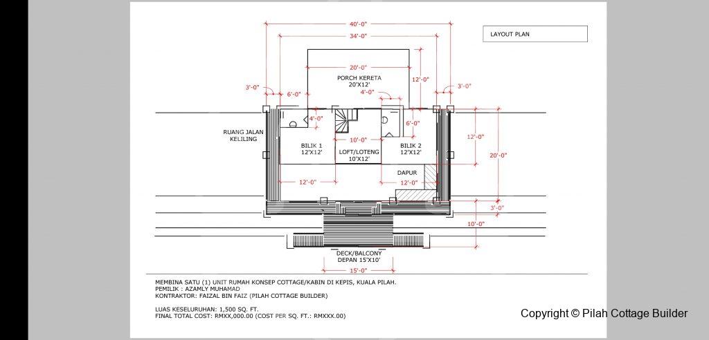
Keluasan binaan: 1,500sf
2 bilik & 2 bilik air. Rumah yang berkonsepkan hybrid tradisional dan modern ini dilengkapi dengan loft/loteng, dapur dan ruang tamu yang selanjar. Mempunyai deck/balcony/verandah disekeliling rumah dan bertingkat dihadapan. Ianya luas sesuai untuk makan/mengopi/beristirehat sambil menikmati permandangan kebun serai dihadapan rumah.
Kabinet dapur dan high table juga dibina mengikut konsep dalaman rumah yang sesuai menggunakan struktur dari besi dan dibalut dengan papan pine (redwood/spruce)
Harga siap: RM165,000.00/unit (RM110/sf) – pada waktu pembinaan
Harga tidak termasuk perabot dan kabinet
Rumah siap electrical (wiring, suis, soket dan lampu LED) dan plumbing (Tidak termasuk kos permohonan, deposit dan pemasangan oleh TNB dan syarikat bekalan air)































