Owner: Wahida
Lokasi: Kg. Dioh, Kuala Pilah, N. Sembilan
Tahun dibuat: June 2022
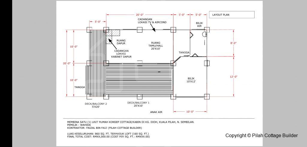
Keluasan binaan: 985sf
Rumah yang berkonsepkan ‘simple cabin’ ini terletak diatas puncak bukit dikelilingi kebun durian. Dilengkapi dengan 1 bilik tidur & 1 bilik air, loft/loteng, dapur dan ruang tamu yang selanjar. Mempunyai deck/balcony yang luas sesuai dengan konsep bersantai dan beristirehat sambil menikmati permandangan bukit-bukau dihadapan rumah.
Harga siap: RM90,000.00/unit (RM92/sf) – pada waktu pembinaan
Harga tidak termasuk perabot dan kabinet
Rumah siap electrical (wiring, suis, soket dan lampu LED) dan plumbing (Tidak termasuk kos permohonan, deposit dan pemasangan oleh TNB dan syarikat bekalan air)

























