Owner: Saiful
Lokasi: Johol, N. Sembilan
Tahun dibuat: November 2024
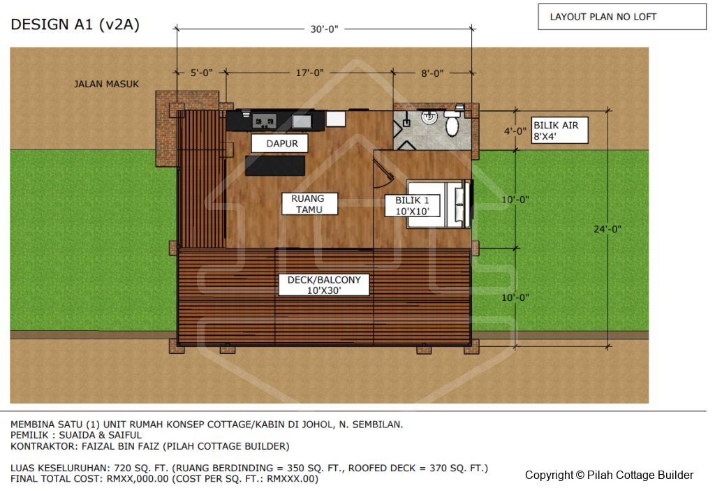
Keluasan binaan rumah: 720sf
Rumah kebun ini dibina diatas tanah seluas 1 ekar. Rumah ini terletak dilereng bukit dan dikelilingi pokok durian. Dilengkapi dengan 1 bilik tidur, 1 bilik air, 1 ruang tamu/dapur dan dihadapannya sebuah deck/balcony yang cukup luas untuk seisi keluarga dan sahabat handai bersantai sambil menikmati durian!
Harga rumah asal: RM85,000.00 (RM118/sf) – pada waktu pembinaan
Kitchen Cabinet: RM6,000.00
Tambahan siling kayu dibahagian deck: RM9,200
Rumah siap electrical (wiring, suis, soket dan lampu LED) dan plumbing (Tidak termasuk kos permohonan, deposit dan pemasangan oleh TNB dan syarikat bekalan air)
















